Proyectos de urbanización y parcelaciones
Proyectos para ejecución material de planeamiento aprobado o modificado mediante urbanización: viales, saneamiento, abastecimiento, energía, alumbrado, ajardinamiento, etc. Proyectos de parcelación con finanlidad de edificación. Estudios de detalle, estudios de implantación y demás documentos técnicos proyectuales, de ejecución o administratiivos, incluída información pública, tramitación por el órgano de ordenación territorial y medio ambiental.
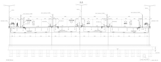
- Definición viales, parcelas y dotaciones de suministros y diseño técnico de los elementos
- Integración y conexión con las redes proyectadas con las existentes de acuerdo a las condiciones de diseño y las especificsaciones municipales
- Proyecto de elementos singulares de dotaciones de suministro necesarios
- Proyectos de parcelación
- Estudios de detalle y de implantación









